Appartement huren: niet meer beschikbaar Jacob van Campenlaan in Leiden

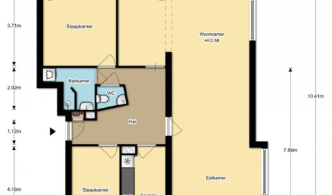
  • 102 m2
  • 3 kamers
  • ? Begindatum
  • Onbepaalde tijd
Op deze pagina vind je alle informatie over dit Appartement in Leiden. Als je vragen hebt kun je contact opnemen met de aanbieder.

Object: Direct bij de eigenaar
Huurtermijn: Onbepaalde termijn
Oplevering: Zie foto
Inkomen eis:2,8 x Bruto huur
Garantiestelling mogelijk: Ja
Borg: 1 Maand
Bemiddeling kosten: Nee
Woningdelers toegestaan: Ja
Huisdieren toegestaan: Afhankelijk van de Eigenaar
Huurtoeslag grens: Nee
Geschikt voor studenten: Afhankelijk van de Eigenaar

Lees meer met een pakket!

Algemene informatie

Stad Leiden
Wijk/buurt: Anders
Inschrijven gemeente: Ja
Opleverniveau: Kaal
Huisgenoten: Geen
Begindatum: Vraag de adverteerder
Bezichtiging In overleg

Faciliteiten

Eigen badkamer
Eigen keuken
Eigen toilet
Eigen voordeur
Vraag de adverteerder
Vraag de adverteerder
Eigen woonkamer
Tonen op kaart